Δήμητρα Παραθυρά | δικηγορικο γραφειο - Δήμητρα Παραθυρά

δικηγορικο γραφειο

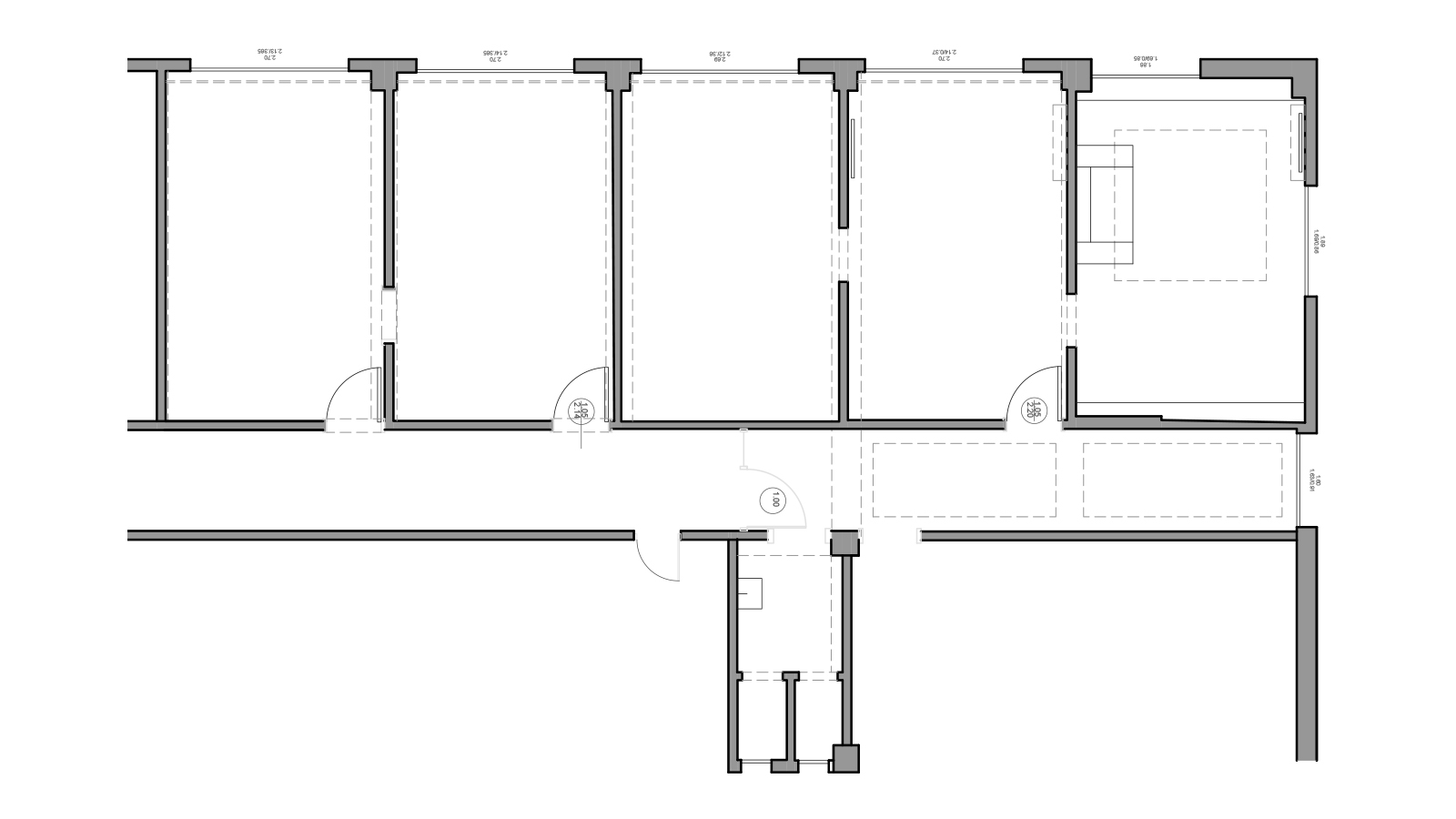
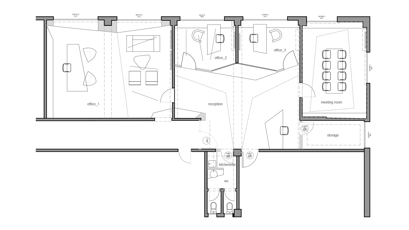
Σχεδιασμος εσωτερικου χώρου δικηγορικου γραφειου Custom Legal στο κεντρο της Θεσσαλονίκης

Αρχιτεκτονική μελέτη εσωτερικού χώρου: Δήμητρα Παραθυρά

Μελέτη Εφαρμογής: Δήμητρα Παραθυρά, Μαριάνθη Τσομλεκτσή

Φωτογραφιση: Kim Powell