Δήμητρα Παραθυρά | Κατοικια στην Κυθνο - Δήμητρα Παραθυρά

Κατοικια στην Κυθνο

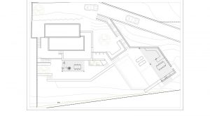
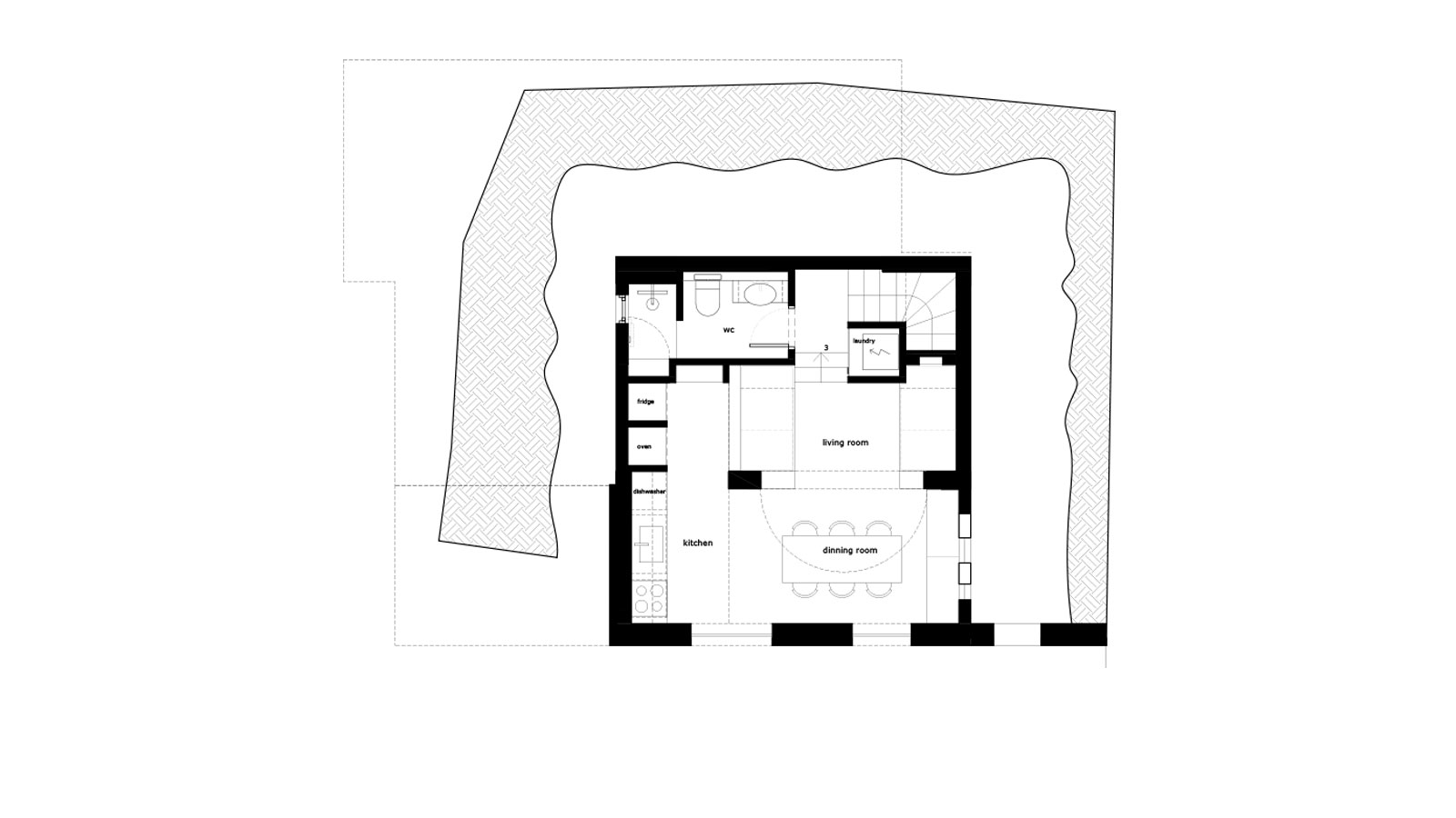
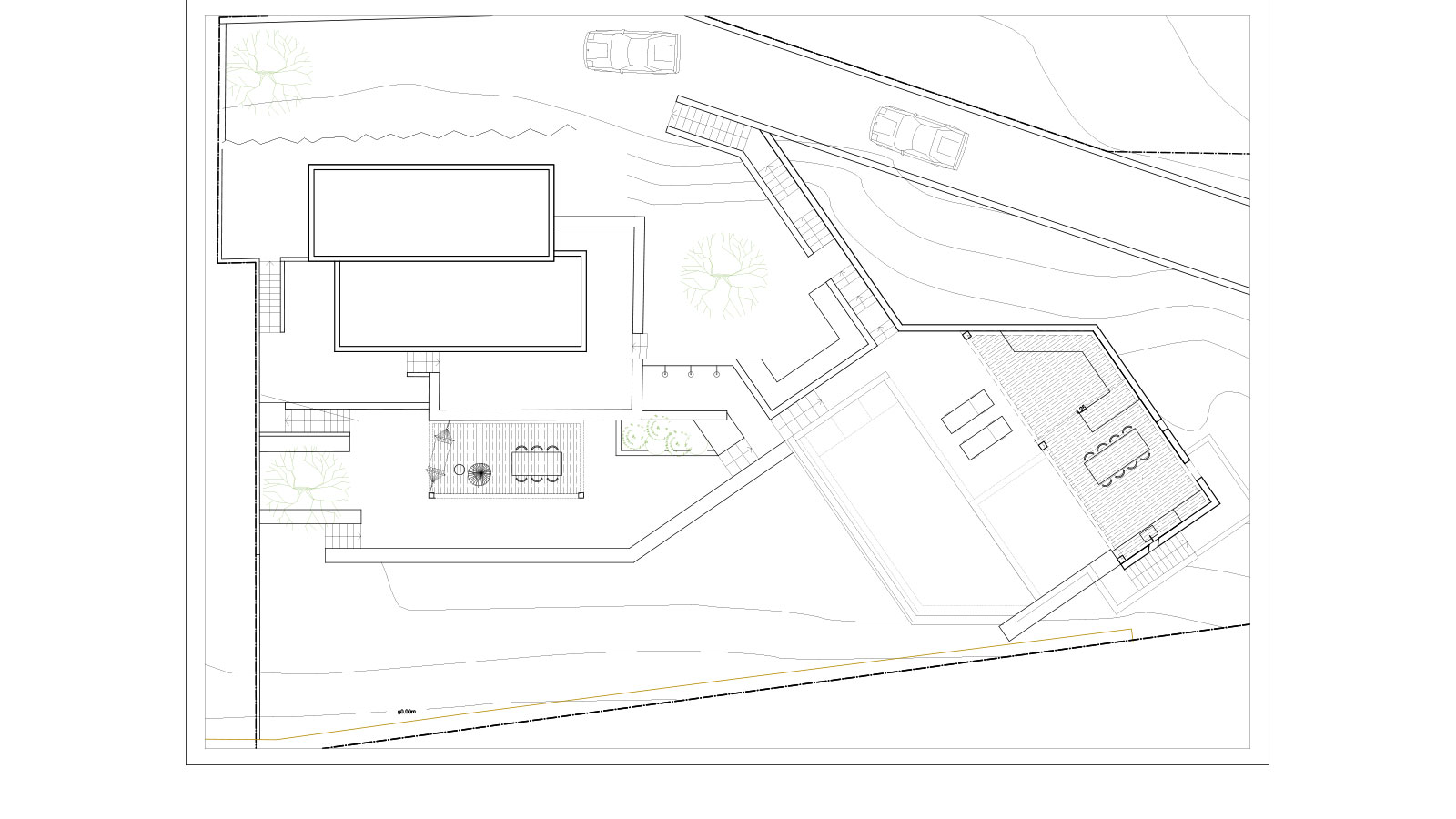
Αποπεράτωση και αναδιαμόρφωση κατοικίας που βρίσκεται στα Μαρτινάκια της Κύθνου.

Αρχιτεκτονική μελέτη εσωτερικού χώρου: Δημητρα Παραθυρά , Μαριάνθη Τσομλεκτσή

Αρχιτεκτονική μελέτη εξωτερικού χώρου: Δήμητρα Παραθυρά