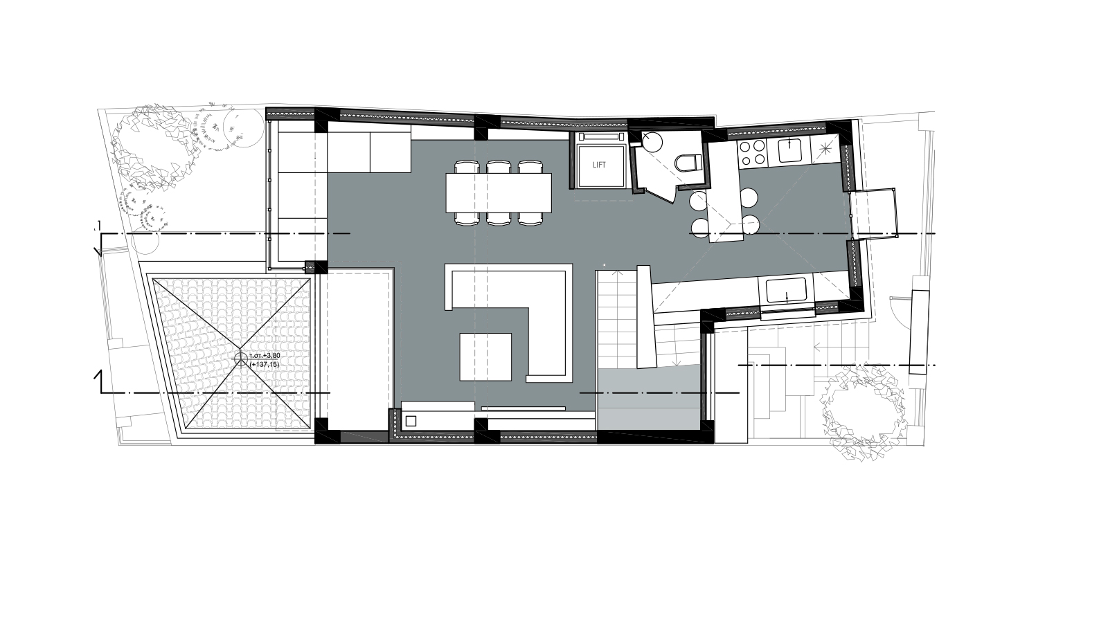
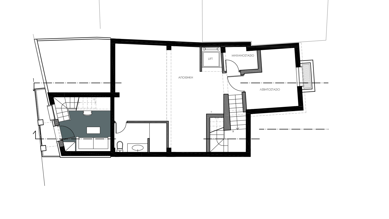
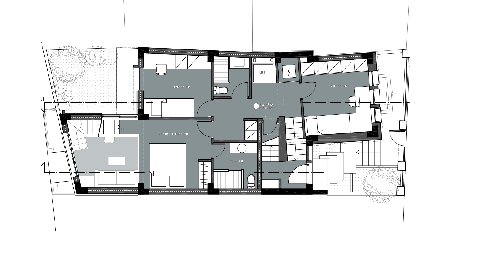
Το κτίσμα αποτελείται απο μία διώροφη κατοικία που αναπτύσσεται κλιμακωτά σε τρεις στάθμες, ακολουθώντας έτσι το ανάγλυφο, αλλά και παραμένοντας σε κάθε σημειο διώροφη. Στην ανώτερη στάθμη βρίσκονται οι χώροι διημέρευσης της οικίας ( σαλόνι-κουζίνα – wc επισκεπτών), στη μεσαία στάθμη -που είναι στο ύψος της οδού Επταπυργίου- αναπτύσσονται τα υπνοδωμάτια, και τέλος, στην κατώτερη στάθμη – στο ύψος της οδού Ευδόξου – διαμορφώνεται το υπόγειο καθώς και ένας κύριος χώρος που επικοινωνεί με κλίμακα με το κυρίως υπνοδωμάτιο της μεσαίας στάθμης, εξασφαλίζοντάς του ανεξαρτησία προς την οδό Ευδόξου.
Ως προς την ογκοπλασία του το κτίσμα οργανώνεται σε τρεις όγκους: τον κυρίως και τους δύο εκατέρωθεν αυτού, που διατάσσονται ακολουθώντας τα πλάγια όρια του οικοπέδου, και ”συνομιλούν” μεταξύ παραδοσιακού και μοντέρνου.
Πράγματι, μοντέρνα στοιχεία του κυρίως όγκου, όπως το υαλότουβλο, η δίρρυχτη στέγη και η μεγάλη τζαμαρία του σαλονιού, έρχονται σ’ έναν αρμονικό διάλογο με τη νεοκλασικίζουσα μορφολογία των δύο μικρότερων: η πέτρα, ο χρωματιστός σοβάς, τα λακαριστά ψηλά κουφώματα με καϊτια, καθώς και το διακοσμητικό γείσο που εγκιβωτίζει μια τετράρυχτη στέγη, ακολουθούν τον παραδοσιακό χαρακτήρα του οικισμού της Ανω Πολης.

