Δήμητρα Παραθυρά | Κατοικια στην Κασσανδρεια Χαλκιδικης - Δήμητρα Παραθυρά

Κατοικια στην Κασσανδρεια Χαλκιδικης

Το έργο αφορά τη μόνιμη κατοικία μιας τριμελούς οικογένειας σ’ενα αγροτεμάχιο έξω απο την Κασσανδρεία Χαλκιδικής.

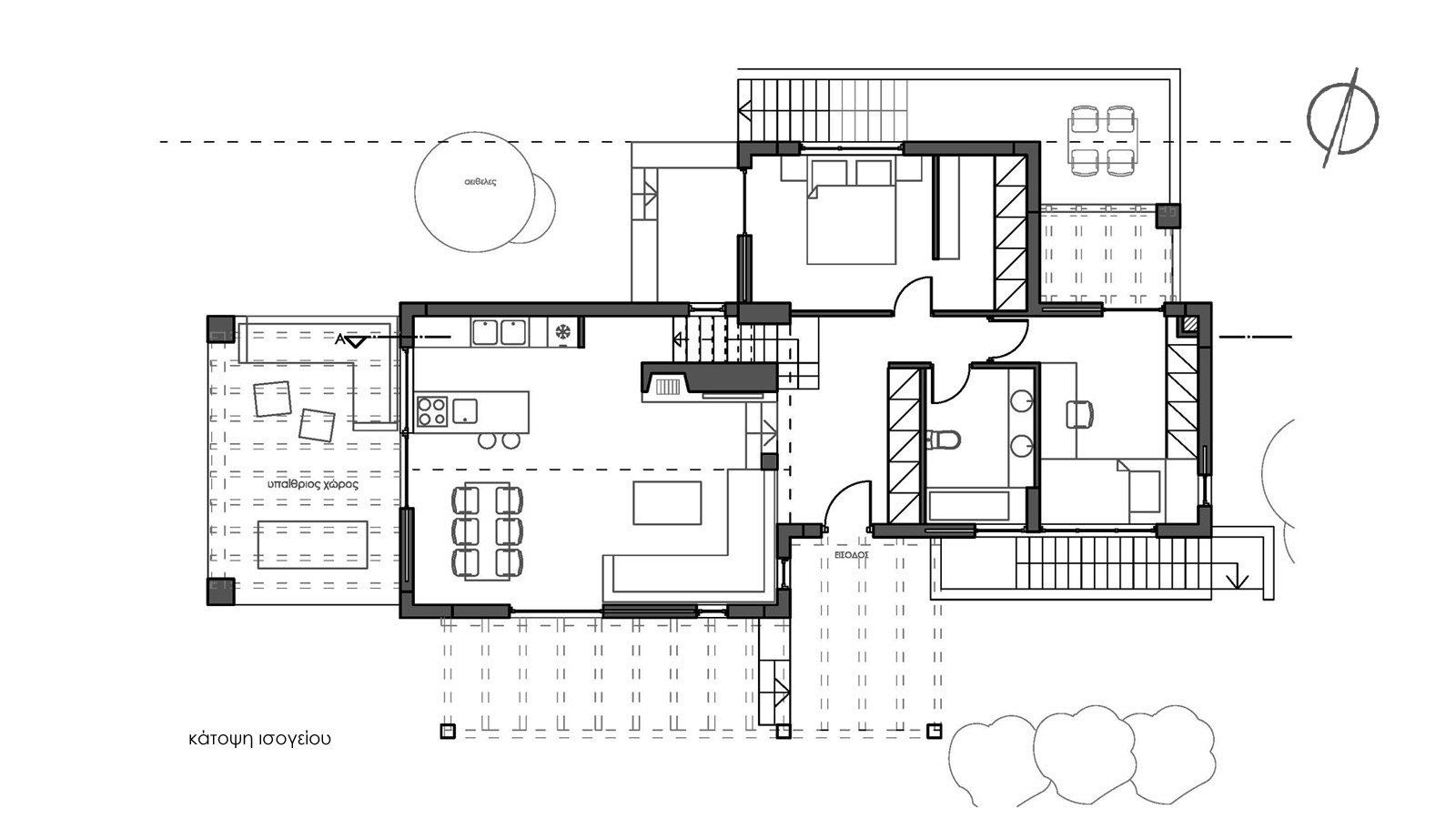
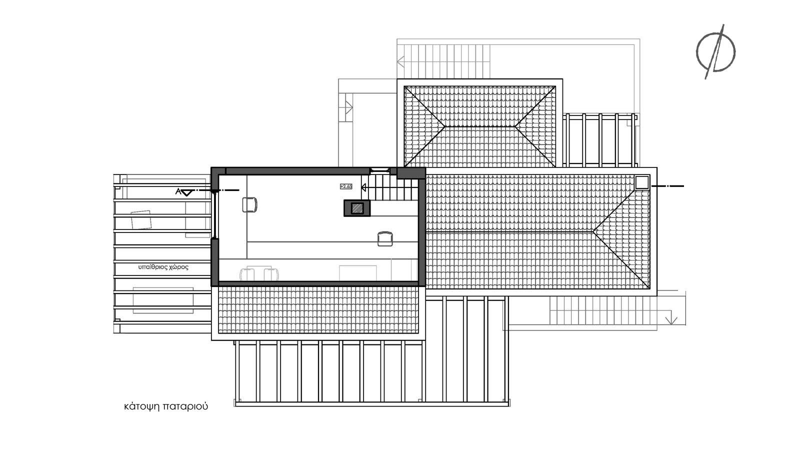
‘Ολη η κάτοψη οργανώνεται στο ισόγειο, ενώ στο χώρο του σαλονιού, ένα εσωτερικό πατάρι προβλέπεται για γραφείο. Το υπόγειο αποτελούν αποθήκη, λεβητοστάσιο και ένας ανεξάρτητος απο τους αποθηκευτικούς χώρους, ξενώνας με άμεση πρόσβαση στην αυλή.

Ιδιαίτερη σημασία δόθηκε στον προσανατολισμό του σπιτιού, με μεγάλα ανοίγματα προς το Νότο και την Ανατολή, ενώ οριζόντιες περγκολες και δέντρα προστατεύουν το καλοκαίρι απο τον μεσημβρινό ήλιο, επιτρέποντάς του όμως το χειμώνα να ‘εισβάλει’ στο σπίτι.

Υλικά, όπως το ξύλο, η πέτρα και ο χρωματιστός σοβάς, συνθέτουν τις εξωτερικές επιφάνειες.

Η άδεια εκδόθηκε το 2012.

GO