ΑΡΧΙΚΗ
ΕΠΙΛΕΓΜΕΝΑ ΕΡΓΑ
ΕΠΙΚΟΙΝΩΝΙΑ
ΑΡΧΙΚΗ
ΕΠΙΛΕΓΜΕΝΑ ΕΡΓΑ
ΕΠΙΚΟΙΝΩΝΙΑ
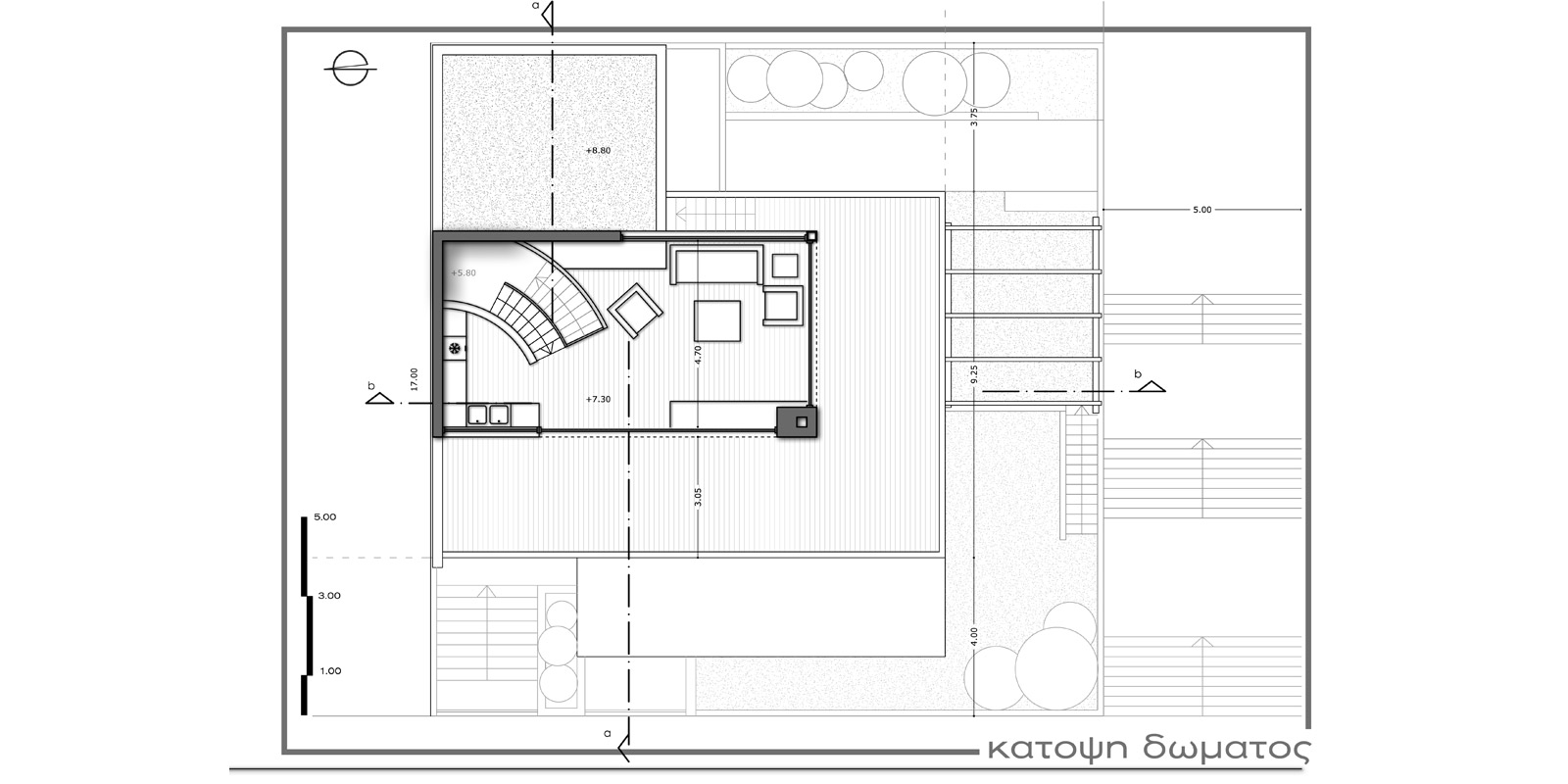
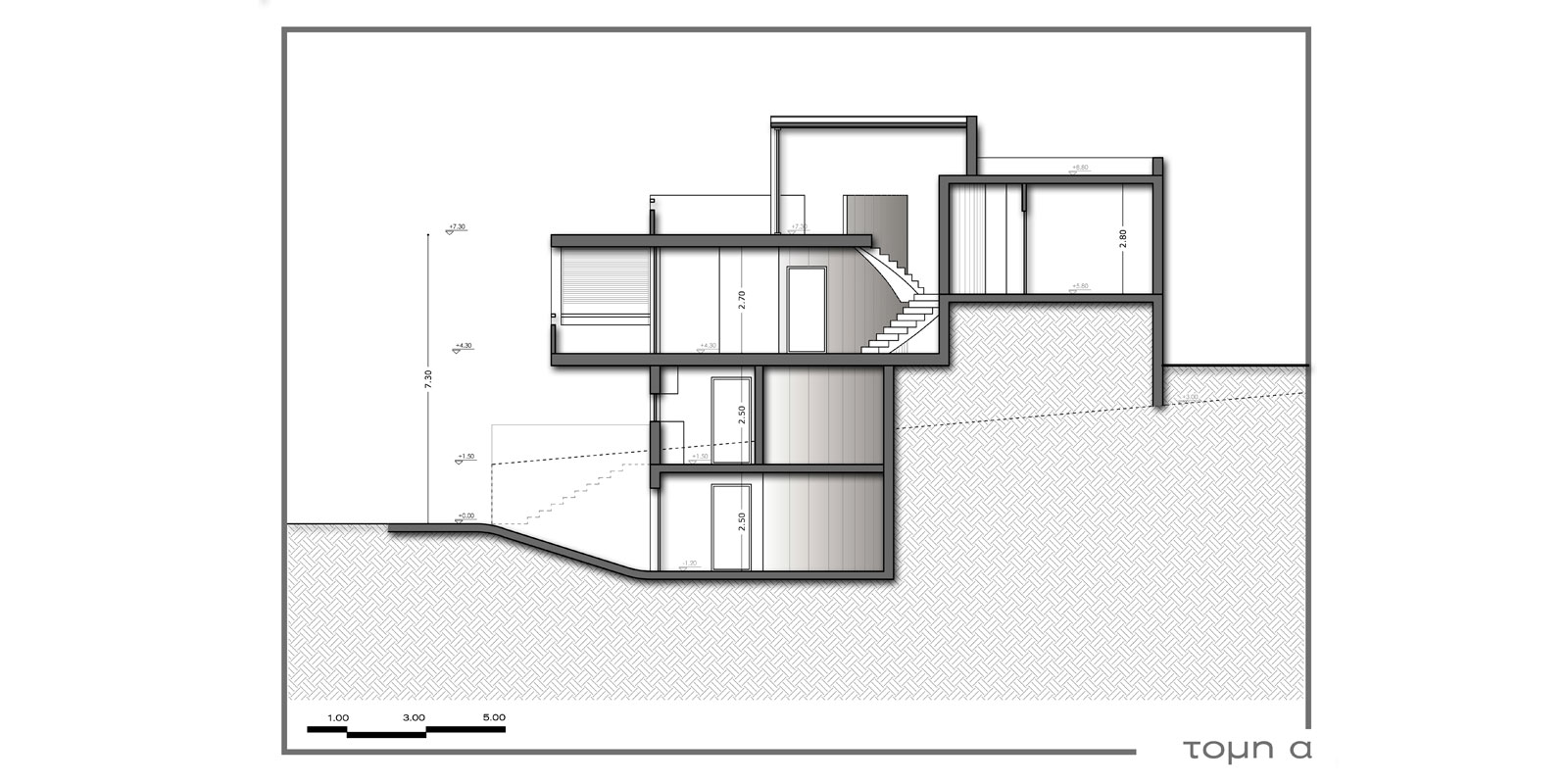
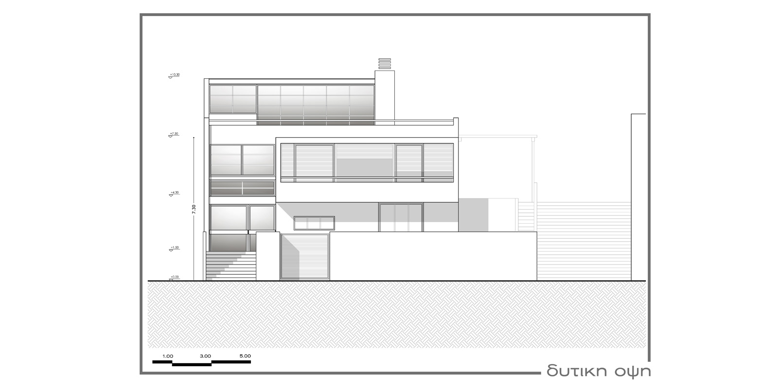
Δήμητρα Παραθυρά | προταση διπλοκατοικιας στις συκιες - Δήμητρα Παραθυρά
προταση διπλοκατοικιας στις συκιες
μη υλοποιημένη Προμελέτη
GO