ΑΡΧΙΚΗ
ΕΠΙΛΕΓΜΕΝΑ ΕΡΓΑ
ΕΠΙΚΟΙΝΩΝΙΑ
ΑΡΧΙΚΗ
ΕΠΙΛΕΓΜΕΝΑ ΕΡΓΑ
ΕΠΙΚΟΙΝΩΝΙΑ
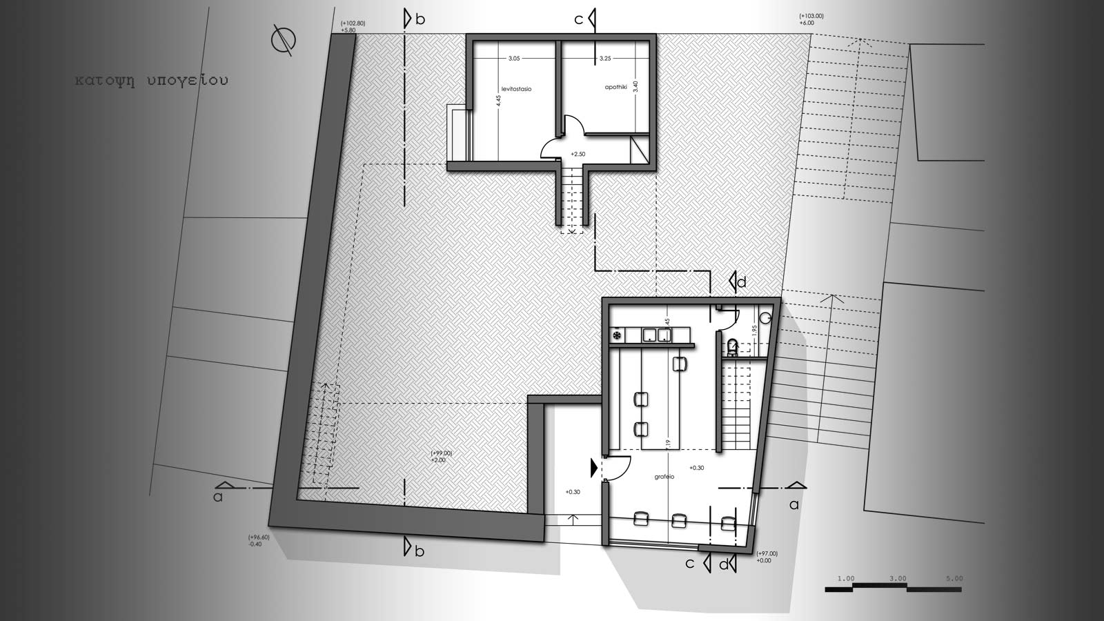
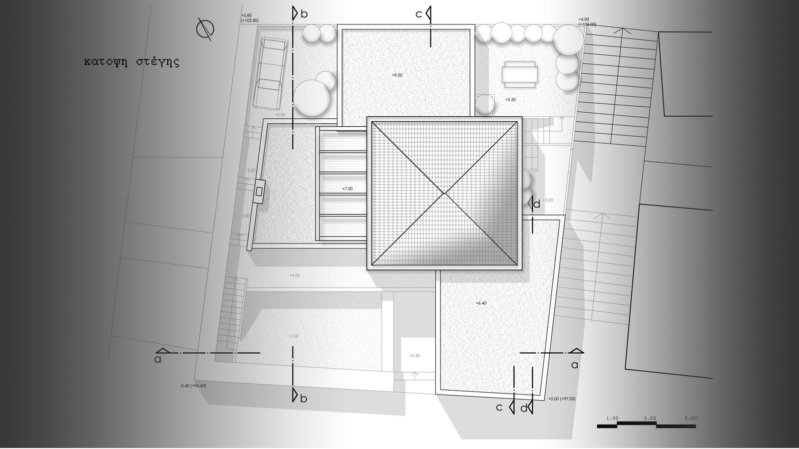
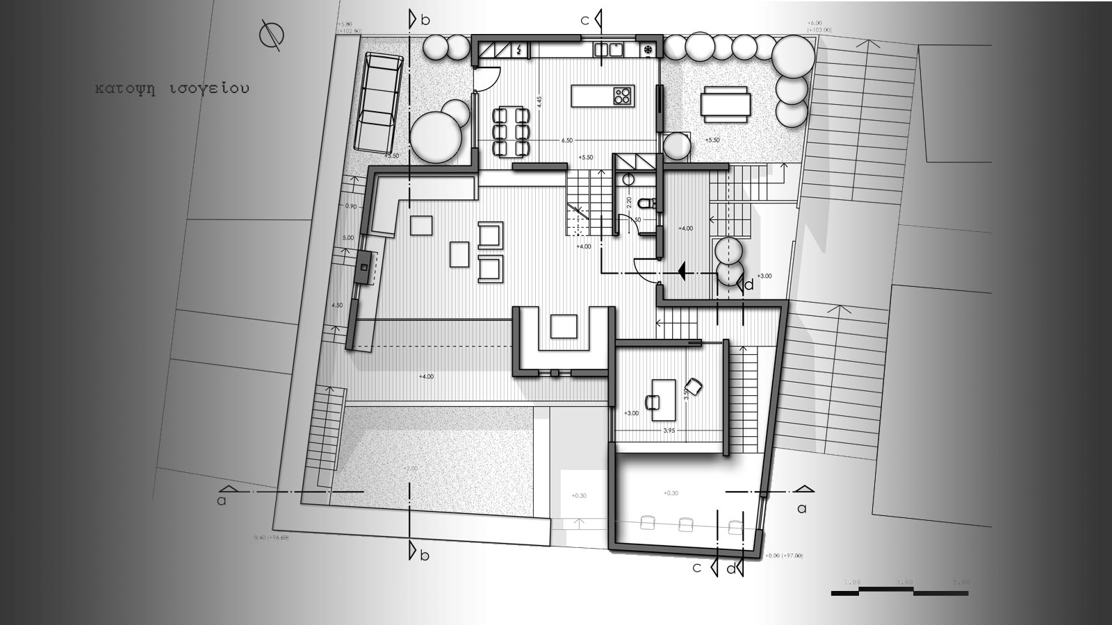
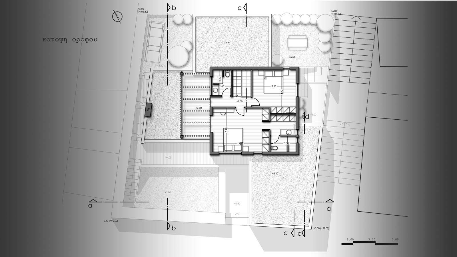
Δήμητρα Παραθυρά | ΠΡΟΤΑΣΗ ΚΑΤΟΙΚΙΑΣ ΜΕ ΓΡΑΦΕΙΟ ΣΤΗΝ ΑΝΩ ΠΟΛΗ - Δήμητρα Παραθυρά
ΠΡΟΤΑΣΗ ΚΑΤΟΙΚΙΑΣ ΜΕ ΓΡΑΦΕΙΟ ΣΤΗΝ ΑΝΩ ΠΟΛΗ
μη υλοποιημένη Προμελέτη
GO